Piso reformado en Calle Castelló

1.750.000€

Ref. #202327

DORMITORIOS

2

bAÑOS

2

SUPERFICIE

103 m2

Piso exterior reformado en venta en calle Castelló Barrio de Salamanca Madrid es una excelente oportunidad para quienes buscan una vivienda lista para entrar a vivir en una de las zonas más prestigiosas de la capital. Situado en una finca clásica, este inmueble combina elegancia, funcionalidad y una reforma integral de alta calidad.

Piso exterior en finca clásica del Barrio de Salamanca

Ubicado en la calle Castelló, este piso se encuentra en una de las calles más demandadas del Barrio de Salamanca, una zona reconocida por su arquitectura señorial, su excelente comunicación y su amplia oferta cultural, comercial y gastronómica. La finca, construida en 1934, mantiene el carácter clásico de la zona y cuenta con ascensor y servicio de portería física.

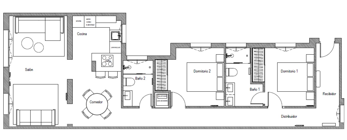
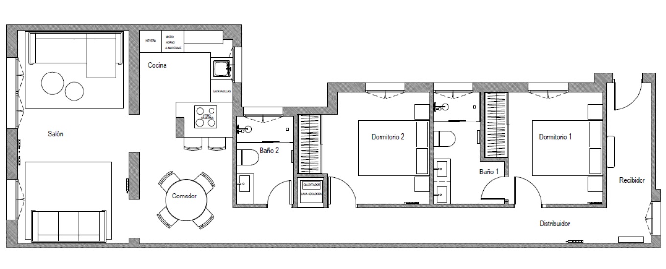
Distribución cómoda y bien aprovechada

La vivienda dispone de una superficie construida de 103 metros cuadrados y 85 metros cuadrados útiles, con una distribución pensada para maximizar el confort. Cuenta con un salón amplio y luminoso, un comedor independiente y una cocina abierta a este completamente equipada. La orientación oeste y su condición de piso exterior garantizan una excelente entrada de luz natural durante gran parte del día.

Dos dormitorios y dos baños a estrenar

Este inmueble dispone de dos dormitorios bien proporcionados, ideales tanto para residencia habitual como para inversión con dos baños que han sido reformados con materiales actuales y funcionales, siguiendo una línea moderna y elegante. Toda la vivienda presenta suelos de tarima, paredes lisas y carpintería interior lacada, aportando una estética uniforme y cuidada.

Reforma integral y equipamiento completo

La vivienda ha sido totalmente reformada en 2025, incluyendo instalaciones, acabados y mobiliario. Se entrega completamente amueblada, lo que permite una entrada inmediata sin necesidad de inversiones adicionales. La carpintería exterior es de PVC, mejorando el aislamiento térmico y acústico, y la calefacción es comunitaria con contadores de consumo individuales, un detalle muy valorado en la zona.

Servicios y entorno privilegiado

Vivir en el Barrio de Salamanca significa disfrutar de una de las mejores ubicaciones de Madrid. La zona cuenta con excelentes conexiones de transporte público, comercios de primer nivel, centros educativos, restaurantes y espacios culturales. Puedes ampliar información sobre este emblemático barrio en Wikipedia https://es.wikipedia.org/wiki/Barrio_de_Salamanca.

Una vivienda ideal para vivir o invertir

Este piso es una opción perfecta tanto para quienes buscan una vivienda principal como para inversores que desean un inmueble de alta demanda en alquiler. Su ubicación, estado y características lo convierten en una propiedad muy atractiva dentro del mercado inmobiliario madrileño. Puedes consultar más consejos y oportunidades similares en el blog de INMOGIL www.inmogilgestion.es

Piso exterior reformado en venta en calle Castelló Barrio de Salamanca Madrid representa una combinación equilibrada de ubicación, calidad y confort en una de las zonas más exclusivas de la ciudad.

INMOGIL no cobra honorarios al comprador, por lo que el precio reflejado es el real.

INMOGIL GESTIÓN, OTRA FORMA DE HACER LAS COSAS!

Contacta con nosotros