Casa en San Lorenzo de El Escorial

499.000€

Ref. #202243

DORMITORIOS

3

bAÑOS

3

SUPERFICIE

533 m2

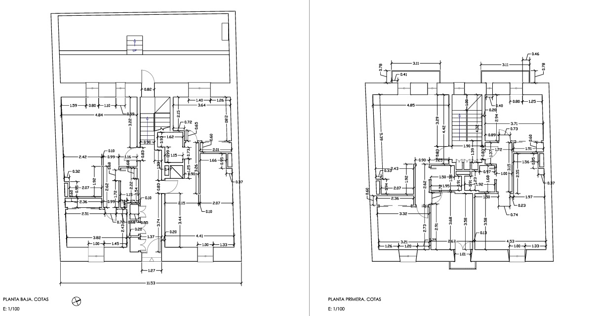
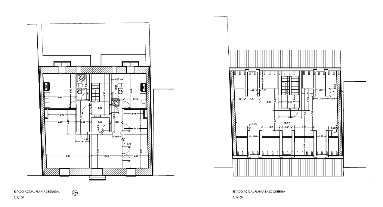
InmoGil Gestión Inmobiliaria pone a la venta una casa/ edificio en San Lorenzo de El Escorial, a escasos minutos del emblemático Monasterio. Este edificio, de planta baja, primera planta y segunda planta dúplex, ofrece una oportunidad única de inversión y conseguir una alta rentabilidad. Es para obra integral con múltiples posibilidades.

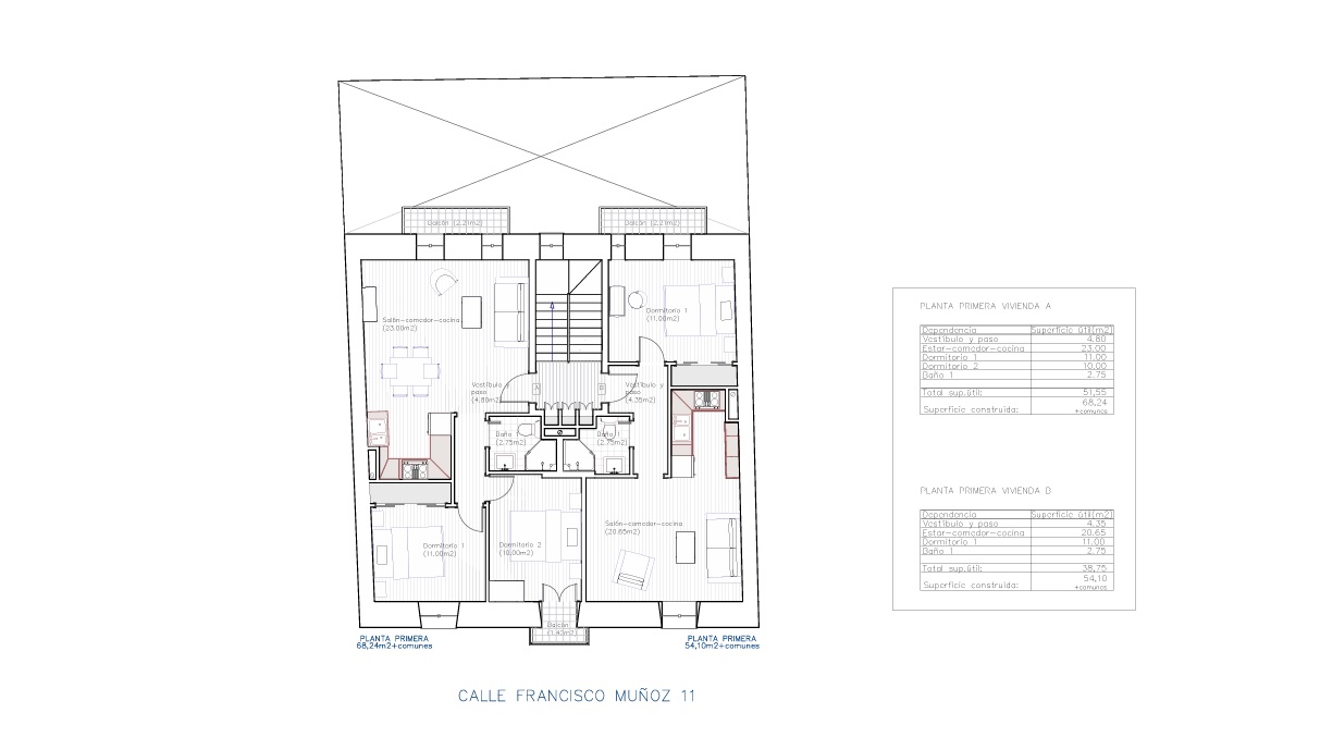
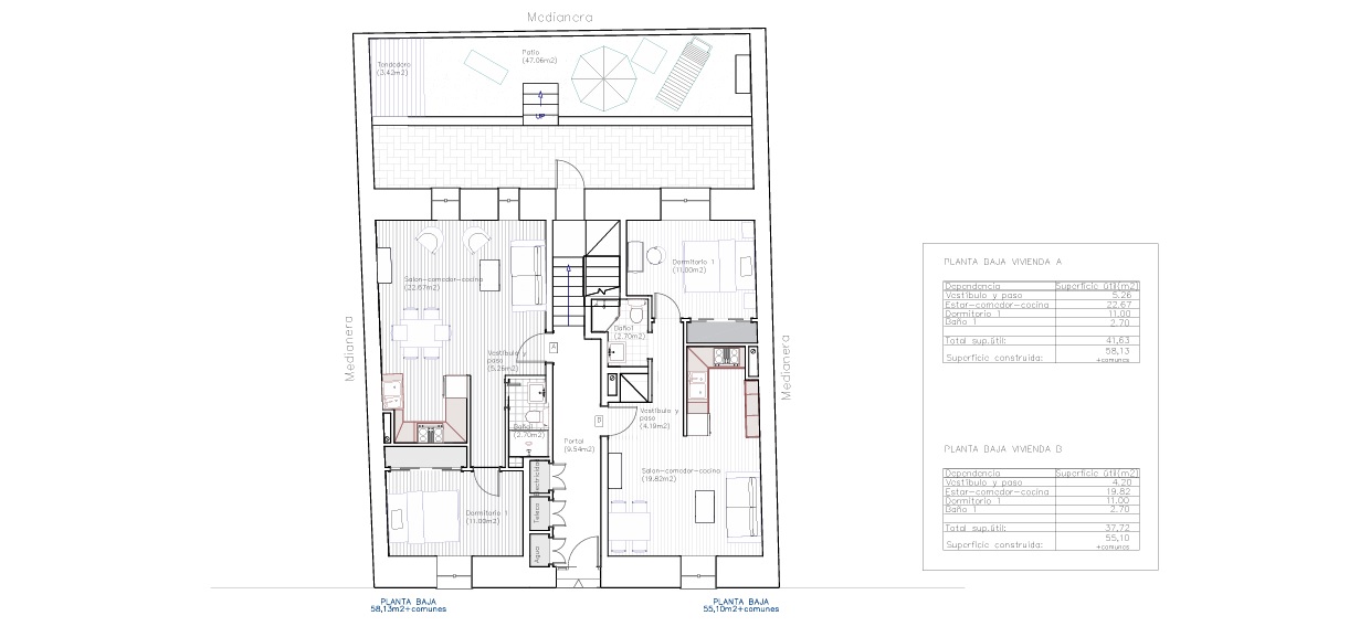
El proyecto está diseñado para construir 6 viviendas con diferentes tipologías:
• Planta Baja A: 58 m² con 1 dormitorio y jardín.
• Planta Baja B: 53 m² con 1 dormitorio y jardín.
• Primera Planta A: 68 m² con 2 dormitorios.
• Primera Planta B: 54 m² con 1 dormitorio.
• Dúplex A: 104 m² con 4 dormitorios y terraza.
• Dúplex B: 100 m² con 3 dormitorios.

También se podría emplear para sacar de 10 a 12 habitaciones estudio para uso turístico o residencial de alquiler para estudiante , muy demandado.

El edificio cuenta con grandes posibilidades de uso, incluyendo residencial, hotelero o turístico, gracias a su excelente ubicación y características.

Es una excelente oportunidad de inversión en un entorno histórico y turístico, ideal para desarrollar un proyecto exclusivo en San Lorenzo de El Escorial.

Recuerde que InmoGil Gestión NO cobra honorarios al comprador, por lo que el precio reflejado es el real.

Estamos a su disposición para resolver cualquier duda y para ofrecerle un trato muy personalizado si está pensando en vender o alquilar su propiedad.

“INMOGIL, OTRA FORMA DE HACER LAS COSAS”.

Contacta con nosotros